Zu Verkaufen €319.000 - Einfamilienhaus
Objektbeschreibung
Das großzügige Einfamilienhaus wurde 1915 errichtet und 1970 angebaut und kernsaniert. Im Laufe der Jahre wurden Modernisierungen vorgenommen.
Ein Garten sowie eine unterkellerte Garage mit elektrischem Tor, runden das Angebot ab.
Das Haus ist komplett unterkellert (mit zusätzlicher Garage für ein kleines Auto, Motorrad usw.)
Das 463 m² große Grundstück ist pflegeleicht angelegt und lädt zum Verweilen ein.
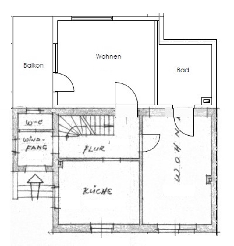
Aufteilung Erdgeschoss: Eingangsbereich, Küche, Wohnzimmer, Schlafzimmer, Badezimmer, Gäste-WC, Balkon
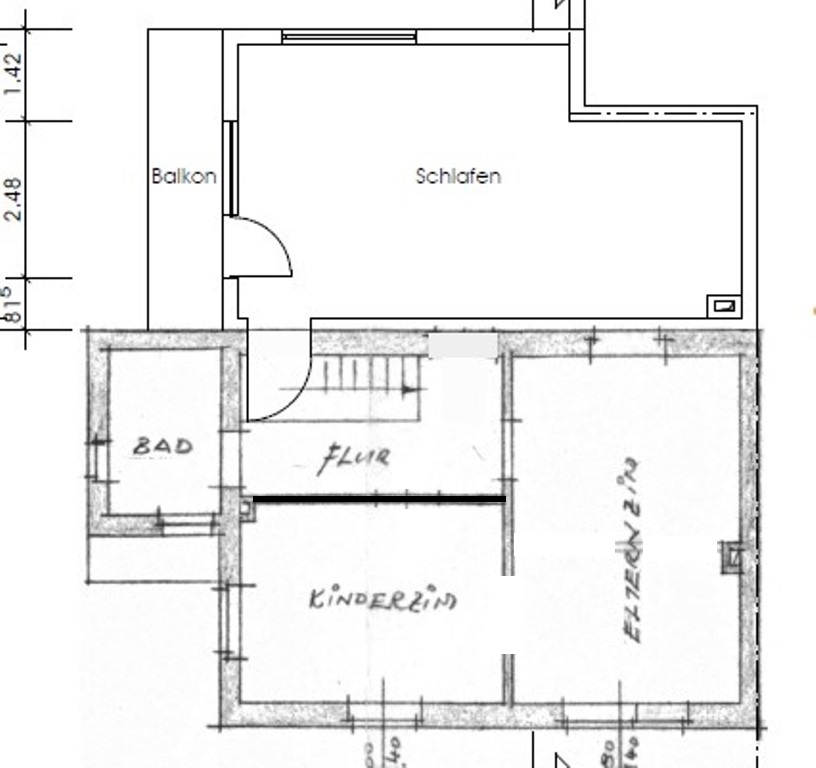
Aufteilung 1. Obergeschoss: 3 Schlafzimmer, Badezimmer, Flur, Diele
Aufteilung Kellergeschoss: 2 Kellerräume, Heizungsraum, Garagenraum
Lage
Bad Neuenahr-Ahrweiler ist eine Stadt in Rheinland-Pfalz im Kreis Ahrweiler, die sich in der Nähe des Flusses Ahr befindet. Die Stadt ist durch die Kombination zweier benachbarter Städte entstanden: Bad Neuenahr und Ahrweiler.
Bad Neuenahr ist bekannt für seine Mineralquellen und den Rotweinwanderweg. Die Stadt ist von sanften Hügeln und Weinbergen umgeben, was sie zu einem beliebten Ziel für Wanderer und Weinliebhaber macht. In der Innenstadt von Bad Neuenahr gibt es viele Geschäfte, Restaurants und Cafés sowie den Kurpark, der mit seinen Blumenbeeten und Grünflächen zum Entspannen einlädt.
Ahrweiler, das ältere der beiden Stadtteile, ist von einer mittelalterlichen Stadtmauer umgeben und hat viele gut erhaltene Fachwerkhäuser. Die historische Altstadt mit ihren engen Gassen und Plätzen ist ein beliebtes Ziel für Touristen. Hier gibt es auch viele kleine Läden, Kunsthandwerksgeschäfte und Restaurants, die regionale Spezialitäten servieren.
Es gibt viele Möglichkeiten, die Weinregion zu erkunden, darunter Weinproben, geführte Wanderungen und Radtouren. Die Stadt ist auch ein guter Ausgangspunkt für Ausflüge in die umliegenden Städte und Sehenswürdigkeiten, wie z.B. Bonn oder den Nürburgring.
Die Immobilie befindet sich im Stadtteil Gimmigen.
Ausstattung
Fenster: Doppelverglasung (verschiedene Baujahre), Rolläden
Böden: Parkett, Fliesen, Laminate, Teppichböden
Wände: Rauhfaser, Tapeten
1 Badezimmer, komplett saniert, mit Dusche, WC, Waschtisch
1 Tageslichtbad aus den 70er Jahren mit Badewanne, WC, Waschtisch
Gas-Zentralheizung (2018)
Garage mit Partyraum
WC mit Dusche mit Gartenzugang (im Haus)
Garten
2 Balkone
Die Immobilie wurde im Laufe der Jahre modernisiert.
Ein Energieverbrauchsausweis vom 9.03.2026 (gültig bis 08.03.2036) liegt vor:
Effizienzklasse F, 186,3 kWh/m²a*, BJ 1915/1970, BJ Heizung: 2018
Weiter Details
- Grundstücksfläche: 463 m²
- Zimmer insgesamt: 5
- Heizungsart: Zentralheizung
- Anzahl Etagen: 1,0
- Zusatzinformation zur Lage: Gimmigen
- Kaufpreis: 319.000 €
- Courtage: 3.57 %
- Anzahl Garagenstellplätze: 1
- Nutzfläche: 167 m²
- Balkone: 2
- Wohneinheiten: 2
- Art der Ausstattung: Standard
- Befeuerung: Gas
- Bodenbelag: Fliesen, Laminat
- Badausstattung: Dusche, Badewanne
- Stellplatzart: Garage, Freiplatz
- Baujahr: 1915
- Zustand: modernisiert
- Letzte Modernisierung: 2025
- Immobilie ist verfügbar ab: nach Vereinbarung







