Zu Vermieten €900 - Etagenwohnung
Objektbeschreibung
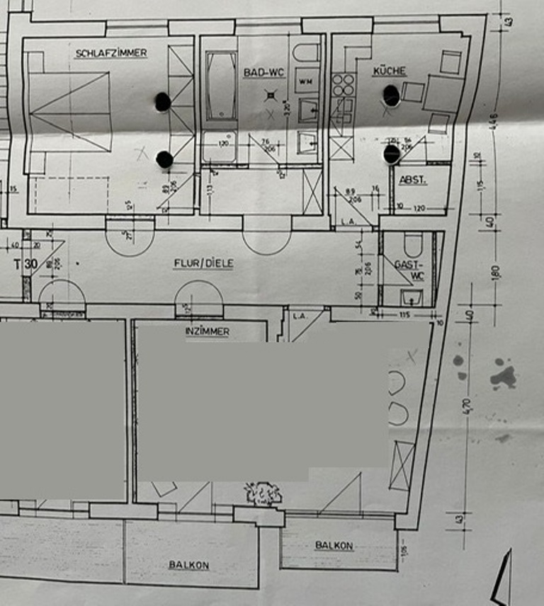
Großzügig geschnittene Wohnung mit knapp 100 qm Wohnfläche verteilt auf Wohn-/Essbereich, Schlafzimmer, Badezimmer, Gäste-WC, Küche, Diele sowie Abstellraum.
2 Balkone mit Blick auf das Kurhaus runden das Angebot ab.
Die Wohnung befindet sich im 2. Obergeschoss und ist neben dem Treppenhaus, natürlich auch über einen Aufzug erreichbar.
Haustierhaltung ist Vereinbarungssache.
Ein Garagenstellplatz kann vis á vis in einem benachbarten Parkhaus angemietet werden (ca 40 EUR/Monat). Zum Be- und Entladen kann direkt vor dem Haus geparkt werden.
Derzeit wird das Gebäude noch saniert (EG und Kellerbereich). Der Kellerraum kann noch nicht genutzt werden.
Lage
Bad Neuenahr-Ahrweiler ist eine Stadt in Rheinland-Pfalz im Kreis Ahrweiler, die sich in der Nähe des Flusses Ahr befindet. Die Stadt ist durch die Kombination zweier benachbarter Städte entstanden: Bad Neuenahr und Ahrweiler.
Bad Neuenahr ist bekannt für seine Mineralquellen und den Rotweinwanderweg. Die Stadt ist von sanften Hügeln und Weinbergen umgeben, was sie zu einem beliebten Ziel für Wanderer und Weinliebhaber macht. In der Innenstadt von Bad Neuenahr gibt es viele Geschäfte, Restaurants und Cafés sowie den Kurpark, der mit seinen Blumenbeeten und Grünflächen zum Entspannen einlädt.
Ahrweiler, das ältere der beiden Stadtteile, ist von einer mittelalterlichen Stadtmauer umgeben und hat viele gut erhaltene Fachwerkhäuser. Die historische Altstadt mit ihren engen Gassen und Plätzen ist ein beliebtes Ziel für Touristen. Hier gibt es auch viele kleine Läden, Kunsthandwerksgeschäfte und Restaurants, die regionale Spezialitäten servieren.
Es gibt viele Möglichkeiten, die Weinregion zu erkunden, darunter Weinproben, geführte Wanderungen und Radtouren. Die Stadt ist auch ein guter Ausgangspunkt für Ausflüge in die umliegenden Städte und Sehenswürdigkeiten, wie z.B. Bonn oder den Nürburgring.
Auch nach der Flut von 2021 ist unsere Stadt wieder ein interessanter und sehenswürdiger Ort.
Ausstattung
Das Mehrfamilienhaus wurde in massiver Bauweise errichtet.
Die Böden sind mit robusten Eichenparkett und Fliesen ausgelegt. Das neue Tageslichtbad verfügt über eine Dusche, Badewanne, WC + Waschbecken.
Das Gäste-WC ist raumhoch gefliest.
– Isolierverglaste Fenster
– Einbauküche mit Elektrogeräten
– 2 Balkone
Kaltmiete: 900 EUR monatlich
Nebenkosten. ca 270 EUR monatlich inkl. Heizkostenabschlag (personenabhängig)
Kaution: 2 Monatskaltmieten
Weiter Details
- Zimmer insgesamt: 2
- Heizungsart: Fernheizung
- Anzahl Etagen: 1,0
- Etage: 2
- Zusatzinformation zur Lage: Bad Neuenahr
- Kaltmiete: 900 €
- monatl. Betriebs-/Nebenkosten: 130 €
- monatl. Heizkosten: 140 €
- Kaution: 1.800 €
- Balkone: 2
- Wohneinheiten: 10
- Art der Ausstattung: gehoben
- Befeuerung: Fernwärme
- Bodenbelag: Fliesen, Parkett
- Badausstattung: Dusche, Badewanne, Fenster im Badezimmer
- Küche: Einbauküche
- Baujahr: 1900
- Zustand: modernisiert
- Immobilie ist verfügbar ab: n.Vereinbarung








